57 Camden Road, N.E.

Job #383, built for Wendell W. Harsh in 1940. This little house has gone through some changes. Renovations to the bathrooms, kitchen and additional bedrooms will hopefully only enhance its rich architectural legacy. It's located in the heart of Brookwood Hills: on the southern side of Camden in between Wakefield Drive and Montclair. In addition to the floorplans for both the first and second floors, I have the Buckhead Brokers brochure.

Buckhead Brokers brochure

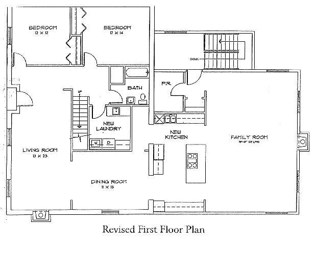
This dramatic redesign and addition to a charming shingle style has it all! Some of the features include a new white kitchen with Corian counters and top of the line appliances, a new family room with fireplace and 10 foot ceilings and a new master syite with 10 foot ceilings and master bath with whirlpool tub and separate shower with walk-in closet. Both the new and second master suites are upstairs. There are two additional bedrooms and one full bath on the main level along with a living room featuring a vaulted ceiling and fireplace, a lovely dining room, powder room and laundry room. Plus, the lower level has been finished for an office or a childrens' rec room. High ceilings, hardwood floors, Mexican tile and lots of charm complete this beautiful picture of unlimited features.

Not only does this house itself contain so many wonderful features, but also the neighborhood of Brookwood Hills brings some impressive qualities of its own with a pool, tennis and security. Also, this great location provides a walk to work, shops and restaurants. This location is excellent for Piedmont Hospital professionals.

With a late spring completion date expected, you can enjoy all of the qualities and features this home has to offer in the prestigious Brookwood Hills neighborhood just in time for the Olympics!


Back to... [ Lewis Crook ] [ Atlanta Residences ]